H系列-簡易型
此類型的旋轉接頭有2個不同的精密研磨的密封組件。
• 類型N(標準型):密封圈為石墨碳和碳化物,適用於過濾水。
• 類型D(耐用型):密封圈為碳化物,適用於過濾精度較差的水。
只有水溫在最高125°F (50°C)時,才能使用超過8bar的液體。
將旋轉接頭使用在最高的應用極限前,麻煩請先詢問我們。
左右尚有資訊|
|
壓力 |
溫度 |
轉速RPM |
|
水 |
¼” - 1½” – 50 bar / 725 PSI |
95°C / 203°F |
¼” - 1½” – 2500 |

左右尚有資訊|
型號 |
單通道旋轉接頭 |
||||||||||||
|
類型N密封圈 |
類型D密封圈 |
A |
B |
ø D |
E |
ø F1 |
ø F2 |
ø G |
H |
I |
J |
L |
Kg |
|
H32-1300-01R |
H32-1301-01R |
G 1 1/4″ RH |
G 1 1/4″ |
31 |
202 |
85 |
88 |
55 |
46 |
22 |
45 |
152 |
2,7 |
|
H32-1300-02L |
H32-1301-02L |
G 1 1/4″ LH |
|||||||||||
|
H40-1300-01R |
H40-1301-01R |
G 1 1/2″ RH |
G 1 1/2″ |
36 |
224 |
93 |
98 |
60 |
50 |
24 |
50 |
169 |
4,2 |
|
H40-1300-02L |
H40-1301-02L |
G 1 1/2″ LH |
|||||||||||
|
H50-1300-01R |
H50-1301-01R |
G 2″ RH |
G 2″ |
48 |
237 |
112 |
114 |
70 |
60 |
25 |
55 |
175 |
7 |
|
H50-1300-02L |
H50-1301-02L |
G 2″ LH |
|||||||||||
左右尚有資訊|
型號 |
單通道旋轉接頭 |
||||||||||||||
|
類型N密封圈 |
類型D密封圈 |
B |
ø D |
E |
ø F1 |
ø F2 |
J |
L |
ø M |
ø N |
ø P h7 |
Q |
R |
S |
Kg |
|
H32-1300-03F |
H32-1301-03F |
G 1 1/4″ |
31 |
204 |
85 |
88 |
45 |
166 |
94 |
70 |
44 |
8 |
12 |
11 |
3,4 |
|
H40-1300-03F |
H40-1301-03F |
G 1 1/2″ |
36 |
219 |
93 |
98 |
50 |
125 |
99 |
78 |
52 |
10 |
14 |
11 |
4,7 |
|
H50-1300-03F |
H50-1301-03F |
G 2″ |
48 |
239 |
112 |
114 |
55 |
190 |
119 |
95 |
65 |
10 |
14 |
11 |
7,7 |
左右尚有資訊|
型號 |
雙通道固定式中間管旋轉接頭 |
|||||||||||||||
|
類型N密封圈 |
類型D密封圈 |
A |
B |
ø D |
E |
ø F1 |
ø F2 |
ø G |
H |
I |
L |
T |
U |
V |
W |
Kg |
|
H32-1300-01R-800 |
H32-1301-01R-800 |
G 1 1/4″ RH |
G 3/4″ |
31 |
211 |
85 |
88 |
55 |
46 |
22 |
112 |
145 |
16 |
G 1/2″ |
G 3/4″ |
3,3 |
|
H32-1300-02L-800 |
H32-1301-02L-800 |
G 1 1/4″ LH |
||||||||||||||
|
H40-1300-01R-800 |
H40-1301-01R-800 |
G 1 1/2″ RH |
G 1″ |
36 |
243 |
93 |
98 |
60 |
50 |
24 |
126 |
164 |
18 |
G 3/4″ |
G 1″ |
4,6 |
|
H40-1300-02L-800 |
H40-1301-02L-800 |
G 1 1/2″ LH |
||||||||||||||
|
H50-1300-01R-800 |
H50-1301-01R-800 |
G 2″ RH |
G 1 1/4″ |
48 |
266 |
112 |
114 |
70 |
60 |
25 |
131 |
179 |
20 |
G 1″ |
G 1 1/4″ |
7,3 |
|
H50-1300-02L-800 |
H50-1301-02L-800 |
G 2″ LH |
||||||||||||||
左右尚有資訊|
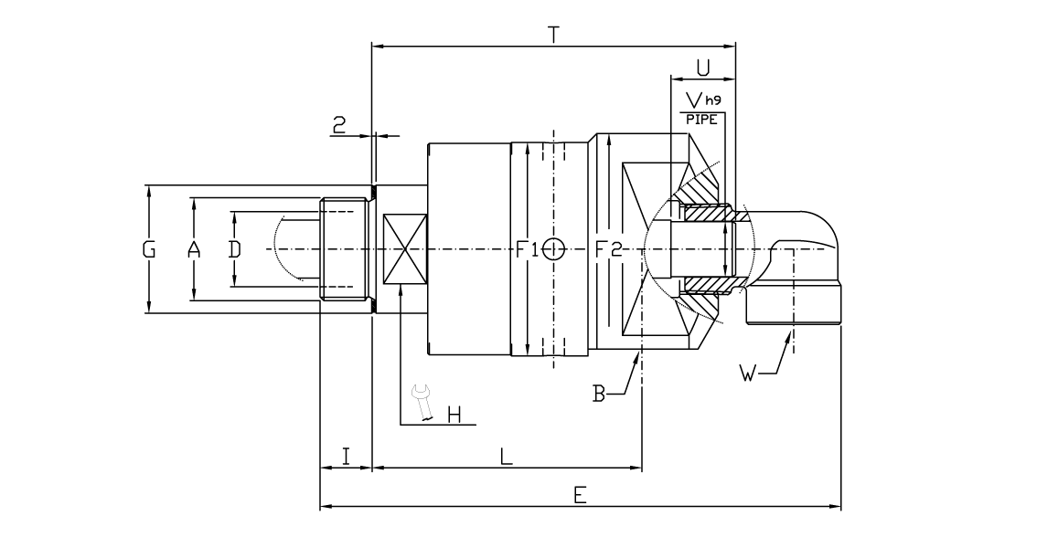
型號 |
雙通道旋轉式中間管旋轉接頭 |
|||||||||||||||
|
類型N密封圈 |
類型D密封圈 |
A |
B |
ø D |
E |
ø F1 |
ø F1 |
ø G |
H |
I |
L |
T |
U |
ø V h9 |
W |
Kg |
|
H32-1300-01R-810 |
H32-1301-01R-810 |
G 1 1/4″ RH |
G 3/4″ |
31 |
211 |
85 |
88 |
55 |
46 |
22 |
112 |
149 |
26 |
21,8 |
G 3/4″ |
3,3 |
|
H32-1300-02L-810 |
H32-1301-02L-810 |
G 1 1/4″ LH |
||||||||||||||
|
H40-1300-01R-810 |
H40-1301-01R-810 |
G 1 1/2″ RH |
G 1″ |
36 |
243 |
93 |
98 |
60 |
50 |
24 |
126 |
170 |
30 |
25,8 |
G 1″ |
4,6 |
|
H40-1300-02L-810 |
H40-1301-02L-810 |
G 1 1/2″ LH |
||||||||||||||
|
H50-1300-01R-810 |
H50-1301-01R-810 |
G 2″ RH |
G 1 1/4″ |
48 |
266 |
112 |
114 |
70 |
60 |
25 |
131 |
184 |
34 |
32 |
G 1 1/4″ |
7,3 |
|
H50-1300-02L-810 |
H50-1301-02L-810 |
G 2″ LH |
||||||||||||||

左右尚有資訊|
型號 |
雙通道固定式中間管旋轉接頭 |
|||||||||||||||||
|
類型N密封圈 |
類型D密封圈 |
B |
ø D |
E |
ø F1 |
ø F2 |
L |
ø M |
ø N |
ø P h7 |
Q |
R |
S |
T |
U |
V |
W |
Kg |
|
H32-1300-03F-800 |
H32-1301-03F-800 |
G 3/4″ |
31 |
213 |
85 |
88 |
126 |
94 |
70 |
44 |
8 |
12 |
11 |
159 |
16 |
G 1/2″ |
G 3/4″ |
3,9 |
|
H40-1300-03F-800 |
H40-1301-03F-800 |
G 1 “ |
36 |
238 |
93 |
98 |
133 |
99 |
78 |
52 |
10 |
14 |
11 |
172 |
18 |
G 3/4″ |
G 1 “ |
5,1 |
|
H50-1300-03F-800 |
H50-1301-03F-800 |
G 1 1/4″ |
48 |
267 |
112 |
114 |
146 |
119 |
95 |
65 |
10 |
14 |
11 |
194 |
20 |
G 1 “ |
G 1 1/4″ |
8 |
|
型號 |
雙通道旋轉式中間管旋轉接頭 |
|||||||||||||||||
|
類型N密封圈 |
類型D密封圈 |
B |
ø D |
E |
ø F1 |
F2 |
L |
ø M |
ø N |
ø P h7 |
Q |
R |
S |
T |
U |
ø V h9 |
W |
Kg |
|
H32-1300-03F-810 |
H32-1301-03F-810 |
G 3/4″ |
31 |
213 |
85 |
88 |
126 |
94 |
70 |
44 |
8 |
12 |
11 |
163 |
26 |
21,8 |
G 3/4″ |
3,9 |
|
H40-1300-03F-810 |
H40-1301-03F-810 |
G 1 “ |
36 |
238 |
93 |
98 |
133 |
99 |
78 |
52 |
10 |
14 |
11 |
177 |
30 |
25,8 |
G 1 “ |
5,1 |
|
H50-1300-03F-810 |
H50-1301-03F-810 |
G 1 1/4″ |
48 |
267 |
112 |
114 |
146 |
119 |
95 |
65 |
10 |
14 |
11 |
199 |
34 |
30 |
G 1 1/4″ |
8 |